Oppervlakte van
51 m2
51 m2
Oppervlakte tot
95 m2
95 m2
Verhuurd
Voorstad- Oliemolenwal - Tiel
Beschrijving
Inschrijving gesloten!
Bent u op zoek naar een nieuw duurzaam, comfortabel en verhuisklaar huurappartement met gunstige energielasten en liftinstallatie op unieke locatie in de binnenstad van Tiel? Dan kunt u nu stoppen met zoeken en u inschrijven voor een van de 19 in aanbouw zijnde appartementen. De verwachte verhuurdatum is medio september 2022.
Inschrijven is mogelijk via de website van Witte Makelaars bij het nieuwbouwproject Voorstad-Oliemolenwal. Gelieve bij uw inschrijving de voorkeur voor appartement door te geven. Enkel aanvragen met een volledig ingevuld huurformulier worden in behandeling genomen. Wij willen u vragen wegens de vele aanvragen geen telefonisch contact met ons op te nemen. Vragen kunnen gesteld worden via het e-mailadres oliemolenwal@wittemakelaars.nl. Alvast bedankt voor uw medewerking.
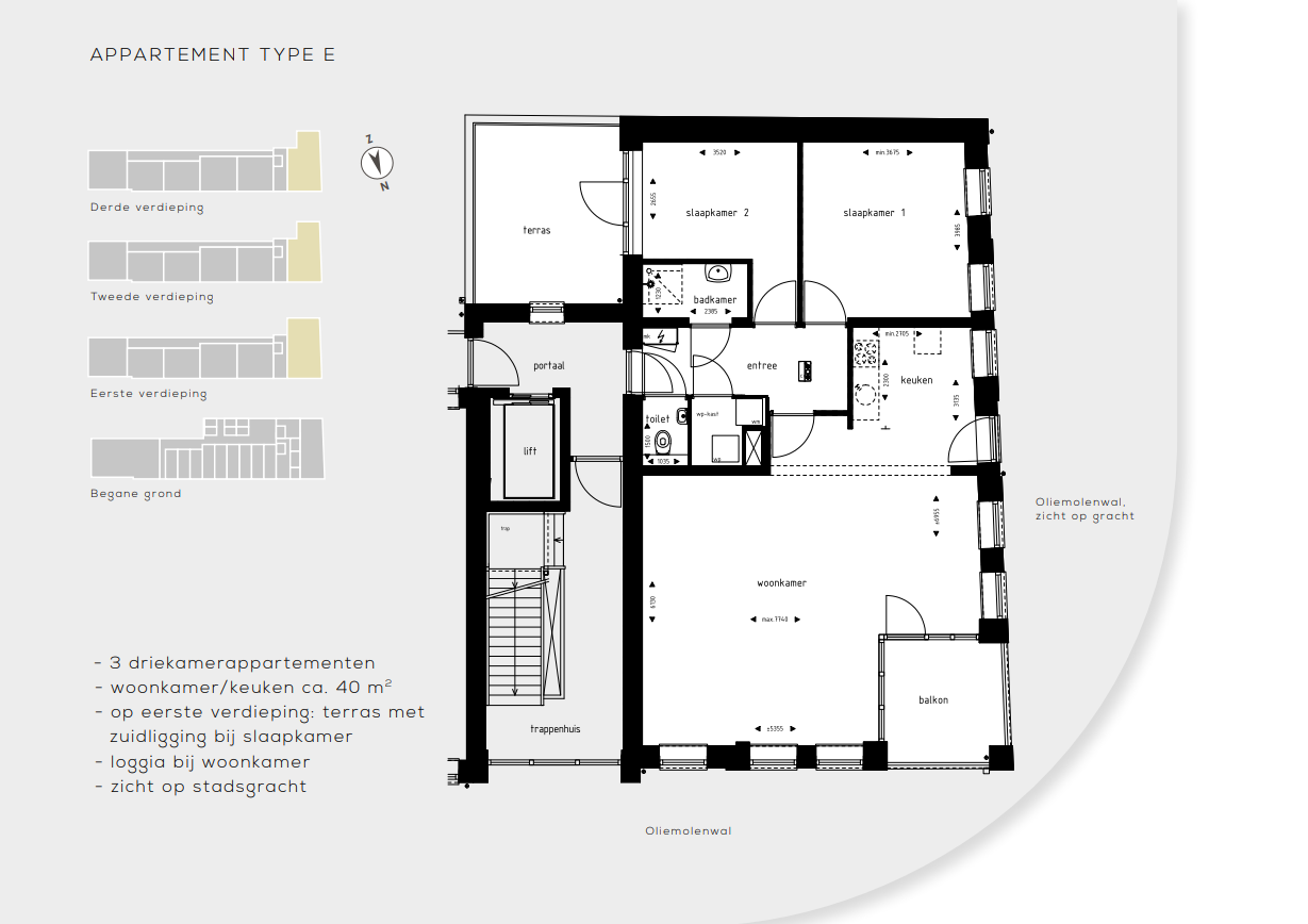
Grootte en type appartementen
De grootte van de appartementen variëren van 51 m² tot en met 95 m² woonoppervlakte (GBO). Er zijn 5 verschillende type appartementen; A, B, C, D, E. Alle type appartementen zijn 3 -kamer appartementen met 2 slaapkamers met uitzondering van type A. Dit is een 2-kamer appartement met één slaapkamer. Alle appartementen hebben een eigen balkon en/of loggia en een (gedeelde) berging of garagebox. Bij media (plattegrond) is te zien welke berging of garagebox bij welk appartement behoort. In de tekst van het appartement staat het nummer aangegeven.
Plattegronden
Plattegronden zijn beschikbaar bij media/ kaarten.
Afwerkingsniveau appartementen
De wanden in de appartementen worden voorzien van stucwerk, fijn scanbehang en sauswerk. De plafonds worden afgewerkt met structuurspuitwerk wit. De vloeren zijn voorzien van lage temperatuur vloerverwarming en worden afgewerkt middels een pvc vloerafwerking met een fraai naturel eikenmotief voorzien van plinten. De wanden van de badkamer zijn tot aan het plafond betegeld en van het toilet tot 1,20 m boven de vloer en daarboven scanbehang.
Sanitair
De badkamers zijn voorzien van een wastafel, inloopdouche en witgoedaansluitingen. Er is een separaat toilet met fonteintje aanwezig.
Keuken
Elk appartement wordt voorzien van een keuken met inbouwapparatuur waaronder een combi-magnetron, vaatwasser, koel- en vries combinatie, inductiekookplaat en recirculatie wandafzuigkap.
PV Panelen per appartement (zonnepanelen)
Tegen een meerprijs kunt u gebruik maken van ca. 5 à 6 zonnepanelen, dit zal naar verwachting een opbrengst genereren van ca. 1500 Kwh per jaar. Hier kunnen geen rechten aan ontleend worden. Bij toewijzing wordt u hierover verder geïnformeerd.
Videofooninstallatie.
De appartementen worden voorzien van een videofooninstallatie met kleuren scherm.
Warmtepomp
De appartementen worden gasloos uitgevoerd. Het appartement wordt verwarmd met een Nibe lucht -water warmtepomp in combinatie met een geïntegreerde boiler t.b.v. warm tapwater. (170 liter).
Garageboxen
De overgebleven garageboxen worden los verhuurd. De huurders van de appartementen welke geen garage hebben, hebben in principe het eerste recht op huur om de garageboxen te huren. De garageboxen worden uitgerust met een tussenmeter voor het stroomverbruik. Voor eventuele elektrisch oplaad punt is een loze leiding meegenomen naar de meterkast. De garagedeuren werken elektrisch en zijn middels 2 meegeleverde handzenders te bedienen.
Inkomenseis
Het bruto maandinkomen dient minimaal 3,5 keer de huurprijs te zijn. Dit mag gezamenlijk, inkomen van een partner wordt voor 1/3 meegenomen. Indien u gepensioneerd bent is deze eis niet van toepassing, u bent vrij om een huurformulier in te dienen en wordt o.a. getoetst op het vermogen.
Inschrijven
Mocht u geïnteresseerd zijn in het project dan vragen wij u om het huurformulier volledig ingevuld aan ons te retourneren. Dit huurformulier is te vinden op de website van Witte Makelaars bij het nieuwbouwproject Voorstad-Oliemolenwal. We willen uw hier vragen om uw voorkeur voor appartement(en) door te geven. Aanvragen zonder volledig ingevuld huurformulier kunnen wij helaas niet in behandeling nemen.
Voorwaarden
- Ingangsdatum medio september 2022;
- Huurperiode minimaal 1 jaar;
- Borg 2 maanden;
- Inschrijven tot maandag 6 juni 12:00;
- Bemonstering van de vloeren, tegels en keuken krijgt u te zien als u de gelukkige bent om bij ons op gesprek te komen. Dan krijgt u ook nog een nadere toelichting over het project, de planning en de condities;
- Toewijzing is op basis van gunning verhuurder.
Vragen kunt u per mail aan ons sturen. U kunt de vragen mail naar oliemolenwal@wittemakelaars.nl. Gelieve wegens de vele aanvragen niet telefonisch met ons contact op te nemen.
Bent u op zoek naar een nieuw duurzaam, comfortabel en verhuisklaar huurappartement met gunstige energielasten en liftinstallatie op unieke locatie in de binnenstad van Tiel? Dan kunt u nu stoppen met zoeken en u inschrijven voor een van de 19 in aanbouw zijnde appartementen. De verwachte verhuurdatum is medio september 2022.
Inschrijven is mogelijk via de website van Witte Makelaars bij het nieuwbouwproject Voorstad-Oliemolenwal. Gelieve bij uw inschrijving de voorkeur voor appartement door te geven. Enkel aanvragen met een volledig ingevuld huurformulier worden in behandeling genomen. Wij willen u vragen wegens de vele aanvragen geen telefonisch contact met ons op te nemen. Vragen kunnen gesteld worden via het e-mailadres oliemolenwal@wittemakelaars.nl. Alvast bedankt voor uw medewerking.
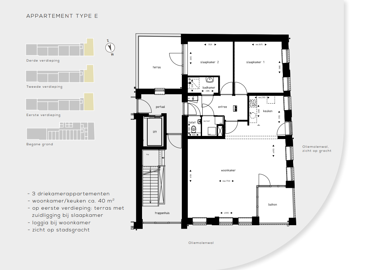
Grootte en type appartementen
De grootte van de appartementen variëren van 51 m² tot en met 95 m² woonoppervlakte (GBO). Er zijn 5 verschillende type appartementen; A, B, C, D, E. Alle type appartementen zijn 3 -kamer appartementen met 2 slaapkamers met uitzondering van type A. Dit is een 2-kamer appartement met één slaapkamer. Alle appartementen hebben een eigen balkon en/of loggia en een (gedeelde) berging of garagebox. Bij media (plattegrond) is te zien welke berging of garagebox bij welk appartement behoort. In de tekst van het appartement staat het nummer aangegeven.
Plattegronden
Plattegronden zijn beschikbaar bij media/ kaarten.
Afwerkingsniveau appartementen
De wanden in de appartementen worden voorzien van stucwerk, fijn scanbehang en sauswerk. De plafonds worden afgewerkt met structuurspuitwerk wit. De vloeren zijn voorzien van lage temperatuur vloerverwarming en worden afgewerkt middels een pvc vloerafwerking met een fraai naturel eikenmotief voorzien van plinten. De wanden van de badkamer zijn tot aan het plafond betegeld en van het toilet tot 1,20 m boven de vloer en daarboven scanbehang.
Sanitair
De badkamers zijn voorzien van een wastafel, inloopdouche en witgoedaansluitingen. Er is een separaat toilet met fonteintje aanwezig.
Keuken
Elk appartement wordt voorzien van een keuken met inbouwapparatuur waaronder een combi-magnetron, vaatwasser, koel- en vries combinatie, inductiekookplaat en recirculatie wandafzuigkap.
PV Panelen per appartement (zonnepanelen)
Tegen een meerprijs kunt u gebruik maken van ca. 5 à 6 zonnepanelen, dit zal naar verwachting een opbrengst genereren van ca. 1500 Kwh per jaar. Hier kunnen geen rechten aan ontleend worden. Bij toewijzing wordt u hierover verder geïnformeerd.
Videofooninstallatie.
De appartementen worden voorzien van een videofooninstallatie met kleuren scherm.
Warmtepomp
De appartementen worden gasloos uitgevoerd. Het appartement wordt verwarmd met een Nibe lucht -water warmtepomp in combinatie met een geïntegreerde boiler t.b.v. warm tapwater. (170 liter).
Garageboxen
De overgebleven garageboxen worden los verhuurd. De huurders van de appartementen welke geen garage hebben, hebben in principe het eerste recht op huur om de garageboxen te huren. De garageboxen worden uitgerust met een tussenmeter voor het stroomverbruik. Voor eventuele elektrisch oplaad punt is een loze leiding meegenomen naar de meterkast. De garagedeuren werken elektrisch en zijn middels 2 meegeleverde handzenders te bedienen.
Inkomenseis
Het bruto maandinkomen dient minimaal 3,5 keer de huurprijs te zijn. Dit mag gezamenlijk, inkomen van een partner wordt voor 1/3 meegenomen. Indien u gepensioneerd bent is deze eis niet van toepassing, u bent vrij om een huurformulier in te dienen en wordt o.a. getoetst op het vermogen.
Inschrijven
Mocht u geïnteresseerd zijn in het project dan vragen wij u om het huurformulier volledig ingevuld aan ons te retourneren. Dit huurformulier is te vinden op de website van Witte Makelaars bij het nieuwbouwproject Voorstad-Oliemolenwal. We willen uw hier vragen om uw voorkeur voor appartement(en) door te geven. Aanvragen zonder volledig ingevuld huurformulier kunnen wij helaas niet in behandeling nemen.
Voorwaarden
- Ingangsdatum medio september 2022;
- Huurperiode minimaal 1 jaar;
- Borg 2 maanden;
- Inschrijven tot maandag 6 juni 12:00;
- Bemonstering van de vloeren, tegels en keuken krijgt u te zien als u de gelukkige bent om bij ons op gesprek te komen. Dan krijgt u ook nog een nadere toelichting over het project, de planning en de condities;
- Toewijzing is op basis van gunning verhuurder.
Vragen kunt u per mail aan ons sturen. U kunt de vragen mail naar oliemolenwal@wittemakelaars.nl. Gelieve wegens de vele aanvragen niet telefonisch met ons contact op te nemen.
Lees meer
Lees minder
Kenmerken
| Algemeen | |
|---|---|
| Aantal bouwnummers | 19 |
| Inhoud vanaf | 152 m3 |
| Inhoud tot | 281 m3 |
| Perceeloppervlakte vanaf | 0 m2 |
| Perceeloppervlakte tot | 0 m2 |
| Opleveringsdatum | 01-09-2022 |


Plan een afspraak




















